找回密码
 注册

微信登录,快人一步

QQ登录

只需一步,快速开始

楼主: 黑旋风

[资料] 合并帖—消毒供应中心设计图

 火... [复制链接]
发表于 2013-10-13 19:37 | 显示全部楼层
下载学习了,非常好。谢谢
回复

使用道具 举报

发表于 2013-11-9 09:07 | 显示全部楼层
布衣 发表于 2009-2-26 19:21
请提供您院消毒供应中心的改建图纸,大家好帮您参谋啊!

先上传一张上海瑞金医院消毒供应中心平面图,请 ...

我们医院也要新建消毒供应中心,非常需要参考大家的平面设计图。
回复

使用道具 举报

发表于 2013-11-9 09:20 | 显示全部楼层
天使飞过 发表于 2010-11-6 14:16
急切求助:我是一家二级医院,想新建一标准化消毒供应中心,领导同意了,但要求我设计一标准的消毒供应中心 ...

我们医院也让我自己设计,480平,还要对设计负责,郁闷啊,个人认为还是应该找专业公司或院感专家设计,这样更符合标准。
回复

使用道具 举报

发表于 2013-11-9 09:28 | 显示全部楼层
西北耗子王 发表于 2011-12-16 01:36
这是我院新建消毒供应中心设计图纸,上传与此,希望得到大家的帮助,帮忙审阅一下,特此致谢!

其实我们供应中心2011年刚改造完,仍有不合理的地方。那时我还没调来,明年盖新楼,院领导要我对设计负责,不允许再出现此现象,深感压力大啊。
回复

使用道具 举报

发表于 2013-11-14 22:14 | 显示全部楼层
谢谢大家的分享与交流,学习了
回复

使用道具 举报

发表于 2013-12-17 16:54 | 显示全部楼层
下载后为什么打不开,郁闷。
回复

使用道具 举报

发表于 2013-12-17 17:26 | 显示全部楼层
学习了,放在负一层不妥吧?
回复

使用道具 举报

发表于 2013-12-24 14:31 | 显示全部楼层
樱桃公主 发表于 2013-11-9 09:20
我们医院也让我自己设计,480平,还要对设计负责,郁闷啊,个人认为还是应该找专业公司或院感专家设计,这 ...

我也觉得,老肯公司愿意免费为大家提供方案。
回复

使用道具 举报

发表于 2013-12-24 14:32 | 显示全部楼层
樱桃公主 发表于 2013-11-9 09:28
其实我们供应中心2011年刚改造完,仍有不合理的地方。那时我还没调来,明年盖新楼,院领导要我对设计负责 ...

要不,我来帮帮您??
回复

使用道具 举报

发表于 2013-12-25 09:25 | 显示全部楼层
老师们好,我院新建供应室,图纸是厂家设计的,请大家帮忙看看,哪些需要完善。file:///C:/Documents如何上传图片呢?
回复

使用道具 举报

发表于 2013-12-25 09:27 | 显示全部楼层
本帖最后由 小虫虫 于 2013-12-26 10:27 编辑


                               
登录/注册后可看大图
file:///C:/Documents%20and%20Settings/Administrator/桌面/供应室图纸.jpg
回复

使用道具 举报

  • 打卡等级:无名新人
  • 打卡总奖励:4
  • 最近打卡:2024-10-06 12:20:36
发表于 2013-12-27 23:33 | 显示全部楼层
看看。。。。。。
回复

使用道具 举报

发表于 2014-1-16 15:34 | 显示全部楼层
图纸呢,要看看图纸。图纸呢,要看看图纸。图纸呢,要看看图纸。图纸呢,要看看图纸。图纸呢,要看看图纸。
回复

使用道具 举报

发表于 2014-1-16 20:28 | 显示全部楼层
楼上说的很对!都有意义,存在着不足,深入研究再定稿吧
回复

使用道具 举报

发表于 2014-2-11 23:57 | 显示全部楼层
学习了!谢谢大家!~~~~~~~~~~~~~~~~~~~~~~~~~~~~~
回复

使用道具 举报

发表于 2014-2-13 14:49 | 显示全部楼层
请问一下,自己电脑里的图片如何上传,因为我们这里想建一家三级医院,我想请老师看看那医院供应室的设计图,然后提出宝贵的意见
回复

使用道具 举报

  • 打卡等级:初来乍到
  • 打卡总奖励:10
  • 最近打卡:2024-12-03 16:03:13
发表于 2014-3-27 23:01 | 显示全部楼层
消毒供应中心灭菌物品存放区、检查包装灭菌都属于三类环境,还需要再做缓冲区吗?
回复

使用道具 举报

发表于 2014-4-21 10:44 | 显示全部楼层
舟舟 发表于 2009-10-28 09:51
我院新建供应室,图纸是厂家设计的,请大家帮忙看看,哪些需要完善。

老师,看了图纸有几个疑问想请教下:1、敷料包装间与敷料进之间的门可否更改为电动传递窗,以减少外界污染物进入?2、无菌区设计层流的话,无菌区与进入手术室的洁梯是否该设缓冲?
回复

使用道具 举报

  • 打卡等级:热心大叔
  • 打卡总奖励:1183
  • 最近打卡:2025-09-13 09:42:35
发表于 2014-6-10 19:53 | 显示全部楼层
路过学习了20楼老师的回帖非常实用非常精彩在、谢谢
回复

使用道具 举报

发表于 2014-6-19 09:54 | 显示全部楼层

关于消毒供应中心设计图的讨论

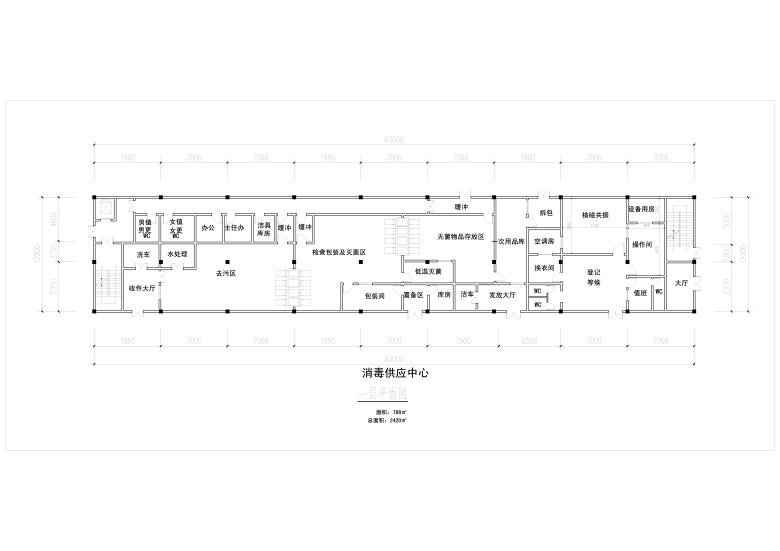
最近,看见论坛中发表关于供应中心设计图的帖子较多,各位老师也针对设计图提出了很多宝贵及合理的建议,我院也准备建供应中心,设计图已经出来了,也请各位专家及老师提出宝贵的建议,谢谢!

旋转 1.jpg

点评

图太小了,看起来很费力,更换一下吧  发表于 2014-6-19 10:57
回复

使用道具 举报

您需要登录后才可以回帖 登录 | 注册 |

本版积分规则

关闭

站长推荐上一条 /1 下一条

快速回复 返回顶部 返回列表